Tel: +44 (0)1908 374 022
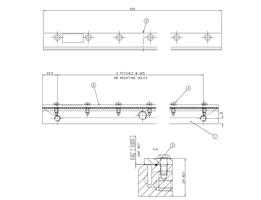
SE600SS
£1,265.45+ VAT
Material: Stainless Steel (Grade 304) |
Country: change
United Kingdom


