Tel: +44 (0)1908 374 022
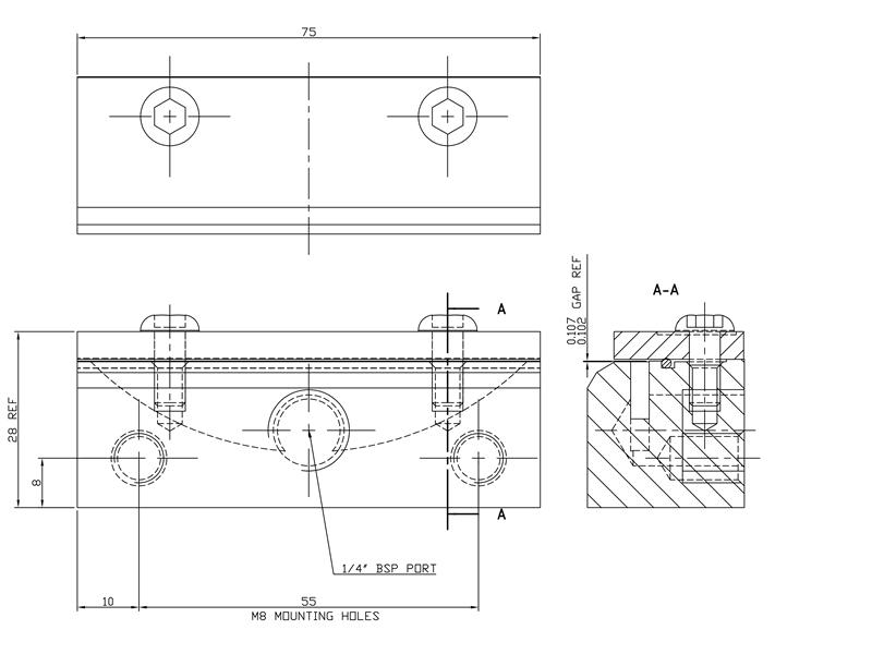
PNS25-10A
For stroke sensing use SK/8 |
Country: change
United Kingdom



